Псков, Овсище м-н, Снятный переулок, 10
Площадь
Жилая
Кухня
Отделка
Класс жилья
Комнат
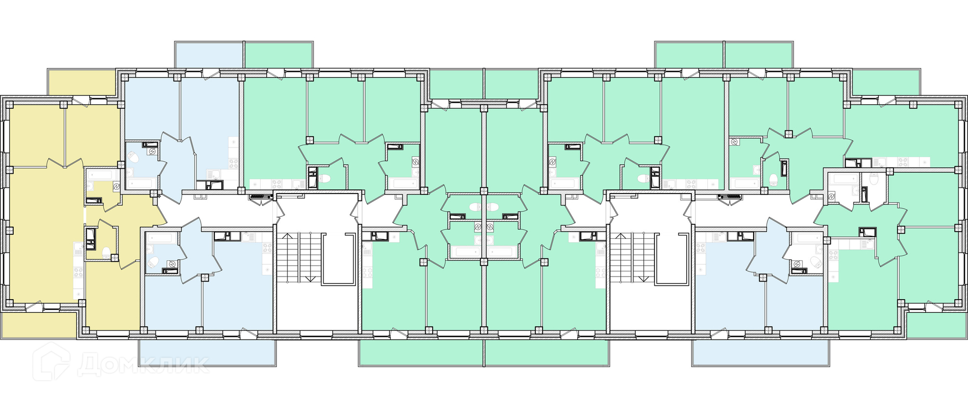
Номер кв.
Этаж
В продаже 2-комнатная квартира в востребованном жилом комплексе "ЖК ДОМ НА СНЯТНОМ" 🏢. Квартира расположена на 2-м этаже 8-этажного дома. Прекрасный выбор для семьи.
Чтобы узнать подробности и проверить актуальную стоимость — свяжитесь с нами прямо сейчас! 📞
Жилой комплекс "Дом на Снятном" демонстрирует превосходные характеристики, делающие его идеальным выбором для комфортной и современной жизни в развивающемся районе. Расположение в шаговой доступности от ключевых объектов инфраструктуры, таких как школы, детские сады и крупные торговые центры, обеспечивает удобство и доступность для жителей. Каркасно-монолитный дом предлагает идеальные условия для комфортной жизни. Стильный дизайн фасада и удобные планировки квартир будут радовать даже самых взыскательных покупателей. Профессионально спроектированная инфраструктура дополняется собственной газовой котельной на крыше, что обеспечивает существенное снижение коммунальных платежей, а также обеспечивает экономическую эффективность. Двор комплекса создан как безопасное и удобное пространство для всех жильцов. Здесь предусмотрены спортивные площадки и детские игровые зоны, обеспечивая возможность активного образа жизни, расслабления и отдыха для всех членов семьи. Жилой комплекс "Дом на Снятном" разработан с учетом желания обеспечить комфорт и безопасность для его жителей, включая наличие дворов без автотранспорта и бесплатных парковочных мест, создавая идеальные условия для комфортной и спокойной жизни.
Срок сдачи: 3 кв. 2026 г.
Срок сдачи: 3 кв. 2026 г.
Площади квартир
Этажность
Класс жилья
Корпусов
Стены